particulier woonhuis Leunen
stripesarchitects is een architectenbureau+. Voor architectuur, kennis en advies. Bekijk het project 'particulier woonhuis Leunen'.
woning, woonhuis, particulier, levensloopbestendig, wonen, woningbouw, volkshuisvesting, stripesarchitects, architecten, stripes, strijp-s, eindhoven, ravenstein, oss, architectenbureau, architects, duurzaam, breeam, architectuur, kennis, advies, zorg, zorgsector, zorghuisvesting, herbestemming, renovatie, logistiek, distributiecentrum, samenwerking
2193
portfolio_page-template-default,single,single-portfolio_page,postid-2193,bridge-core-3.0.8,qode-page-transition-enabled,ajax_fade,page_not_loaded,,qode-theme-ver-29.5,qode-theme-bridge,qode_header_in_grid,wpb-js-composer js-comp-ver-6.10.0,vc_responsive,elementor-default,elementor-kit-3432

particulier woonhuis Leunen

particulier woonhuis Leunen

Nieuwbouw woning voor particulier in jaren ’60-stijl
opdrachtgever: particulier
ontwerp: 2017
architect: Marc Bell

 

Categorie

Wonen

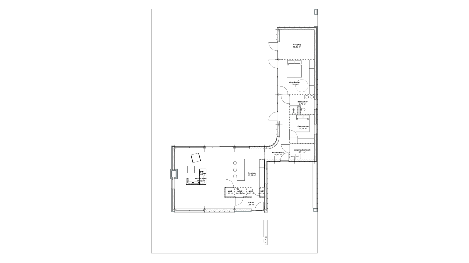
De opdrachtgever is gecharmeerd van woningen uit de jaren ‘60 en wil graag een moderne, levensloopbestendige, energiezuinige woning die refereert aan de stijl uit die tijd.

 

Het kavel betreft een hoekperceel van ca. 20×30 m¹. Het woongedeelte en slaapgedeelte zijn in haakvorm georganiseerd. Door deze opzet blijft een zo groot mogelijke tuin over. De verblijfsruimten worden door grote glasvlakken maximaal betrokken bij de tuin.

Het geheel zal worden vervaardigd in houtskeletbouw waardoor een hoogwaardig geïsoleerde woning kan worden gerealiseerd. Het hellende zinken dak is los gedetailleerd van de onderbouw waardoor het geheel luchtig blijft. Boven de carport worden transparante zonnecollectoren geïntegreerd.

Het hellende dak heeft als voordeel dat de woon- en eetkamer extra hoogte krijgt waardoor deze erg ruim en licht aanvoelen.

 

De gevel aan de straatzijde is opgetrokken uit baksteen metselwerk. Ter plaatse van openingen en entree’s wordt hout toegepast. Ook de binnengevels zijn gemaakt van hout.

bekijk onze projecten in de categorie ‘wonen’: