appartementen Leerdam
stripesarchitects is een architectenbureau+. Voor architectuur, kennis en advies. Bekijk de appartementen Leerdam.
appartementen, wonen, woningbouw, volkshuisvesting, Leerdam, stripesarchitects, architecten, stripes, strijp-s, eindhoven, ravenstein, oss, architectenbureau, architects, duurzaam, breeam, architectuur, kennis, advies, zorg, zorgsector, zorghuisvesting, herbestemming, renovatie, logistiek, distributiecentrum, samenwerking
295
portfolio_page-template-default,single,single-portfolio_page,postid-295,bridge-core-3.0.8,qode-page-transition-enabled,ajax_fade,page_not_loaded,,qode-theme-ver-29.5,qode-theme-bridge,qode_header_in_grid,wpb-js-composer js-comp-ver-6.10.0,vc_responsive,elementor-default,elementor-kit-3432

appartementen Leerdam

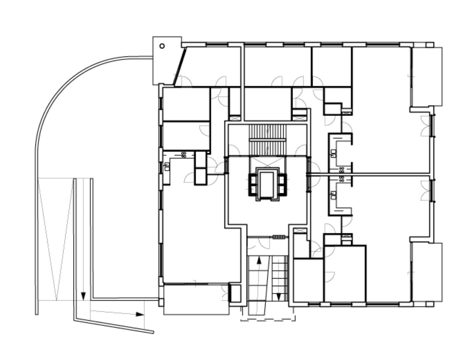
appartementen te Leerdam

27 appartementen in 3 typen ( 130 tot 150 m²)
opdrachtgever: Vahstal Probouw BV
oplevering: 2003
architect: Marc Bell
fotografie: Fotografie Hans Morren vof

 

categorie

Wonen

Twee appartementenblokken van respectievelijk vijf en vier woonlagen vormen de kop en de staart van een nieuwe bebouwingsstrook parallel aan de ‘Recht van Ter Leede’, een invalsweg van Leerdam. Ze moeten er stáán. Ze mogen gezien worden.

De gebouwen zijn ontworpen als monolieten bakstenen volumen op een plint, gedeeltelijk in het water. Aan de zonnige zuidzijde zijn panelen in een schaakbordpatroon uitgevoerd. Dit weerspiegelt in het water van de plaatselijk verbrede sloot en zorgt voor een dynamisch effect. Niet te missen.

bekijk onze projecten in de categorie ‘wonen’: